
Meeting Room 1500
Baqueira Beret - Val d'AranUbicado en las galerías del Village Baqueira 1500, este local, que ha tenido diversos usos a lo largo de los años, se ha transformado, más que en una simple oficina, en un espacio compartido, de encuentro y de colaboración.
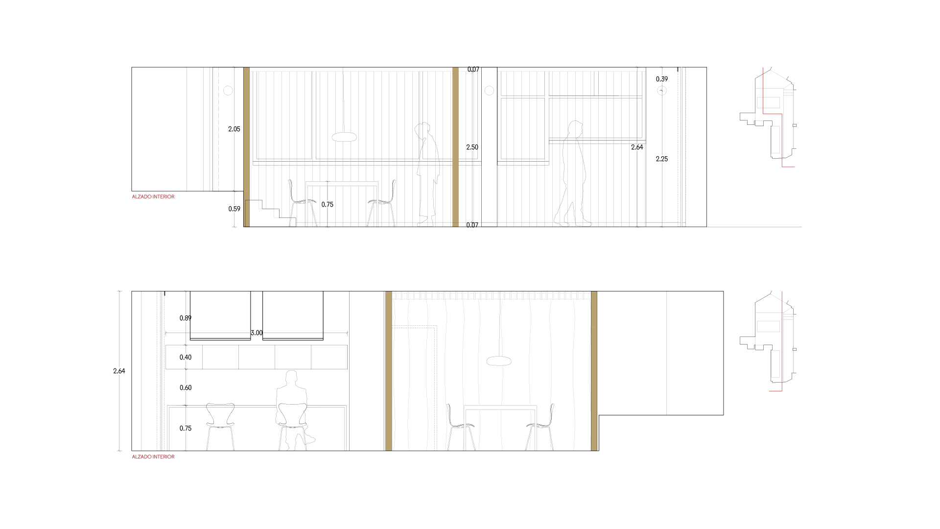
El diseño se organiza en torno a una mesa de reuniones, con dos puestos de trabajo e impresoras situados en un extremo, complementados por un aseo y un office.
Para resolver la diferencia de altura entre el acceso y la sala, se ha creado un preámbulo elevado que funciona como recibidor, separado por un filtro de madera que también delimita la zona de trabajo del área central. La conexión con el exterior se enfatiza mediante un filtro blanco en las ventanas que dan a la plaza, mientras que los materiales locales —roble, pizarra y cuerda— aportan calidez y carácter al espacio.
Leer másFecha 2024Uso Oficina, ReformaServicios Estudio de InteriorismoEstado EntregadoCliente PrivadoSuperficie 48 m2Fotografía Iñigo BujedoMeeting Room 1500
Baqueira Beret - Val d'Aran







